Selecteer een pagina

Woningen Sleutelbloemstraat

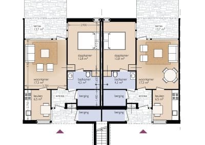
De Sleutelbloemstraat grenst direct aan het winkelcentrum Vredeveld. Van de veertig woningen, zijn er bovenwoningen die beschikken over een balkon en de benedenwoningen beschikken over een gezamenlijke tuin, met privé terras, die door ons wordt onderhouden.
De woningen hebben een oppervlakte van ongeveer 50m². De woningen hebben één slaapkamer. Voor het stallen van fietsen is een gezamenlijke berging beschikbaar. De huurprijs van de woningen ligt onder de huursubsidiegrens.
Mocht u interesse hebben in de woningen, neem dan gerust contact met ons op. Op dit moment is er een wachtlijst, maar u kunt zich kosteloos bij ons inschrijven voor de woningen.